19
  • Tipologia
  • Appartamento
  • 2
  • Camere da letto
  • 2
  • Bagni
  • 103 m²
  • Superficie
  • 1969
  • Anno di costruzione
ZONA ROSSETTI – Ottime condizioni.
  • €237.000

Descrizione

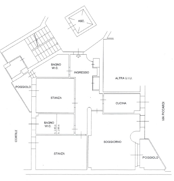
Elegante palazzo dotato di ascensore con facciata rifatta in zona servita. Appartamento sito al terzo piano con doppia esposizione. Atrio d’ingresso, soggiorno con terrazzino, cucina. Camera matrimoniale, cameretta con balcone. Due bagni completi finestrati, ripostiglio e cantina. Ottime condizioni interne, porta blindata, pavimenti in parquet, libero da subito.

  • Indirizzo: Piccardi 17
  • Città: Trieste
  • Stato / Paese: in evidenza
  • Zip / Codice postale: 34141
  • Zona: Rossetti-Fiera
  • Nazione: Italia

Caratteristiche

Aggiornato il Aprile 7, 2026 at 10:19 am
  • Prezzo €237.000
  • Superficie 103 m²
  • Camere da letto 2
  • Bagni 2
  • Anno di costruzione 1969
  • Tipologia Appartamento
  • Stato dell'immobile In Vendita
  • Piano 3
  • Ascensore si
  • Numero Locali 3
  • Terrazzi 1
  • Balconi 1
  • Riscaldamento Centralizzato
  • Cantina SI
  • Porta Blindata SI

Classe Energetica

  • Classe energetica: E
  • Indice di prestazione energetica globale: 91,06
  • A+
  • A
  • B
  • C
  • D
  • 91,06 | Classe energetica E
    E
  • F
  • G

Planimetrie

360° Virtual Tour

Informazioni sui contatti

MARCO MERIGGIOLI

Richiedi informazioni su questo immobile

Confronta Strutture

Confronta